VILLA BIFAMILIARE NUOVA

420.000 €
160 m²
Superficie
4
Locali
3
Camere
2
Bagni
1
Box
in vendita
villa bifamiliare
Grumello del Monte
Descrizione
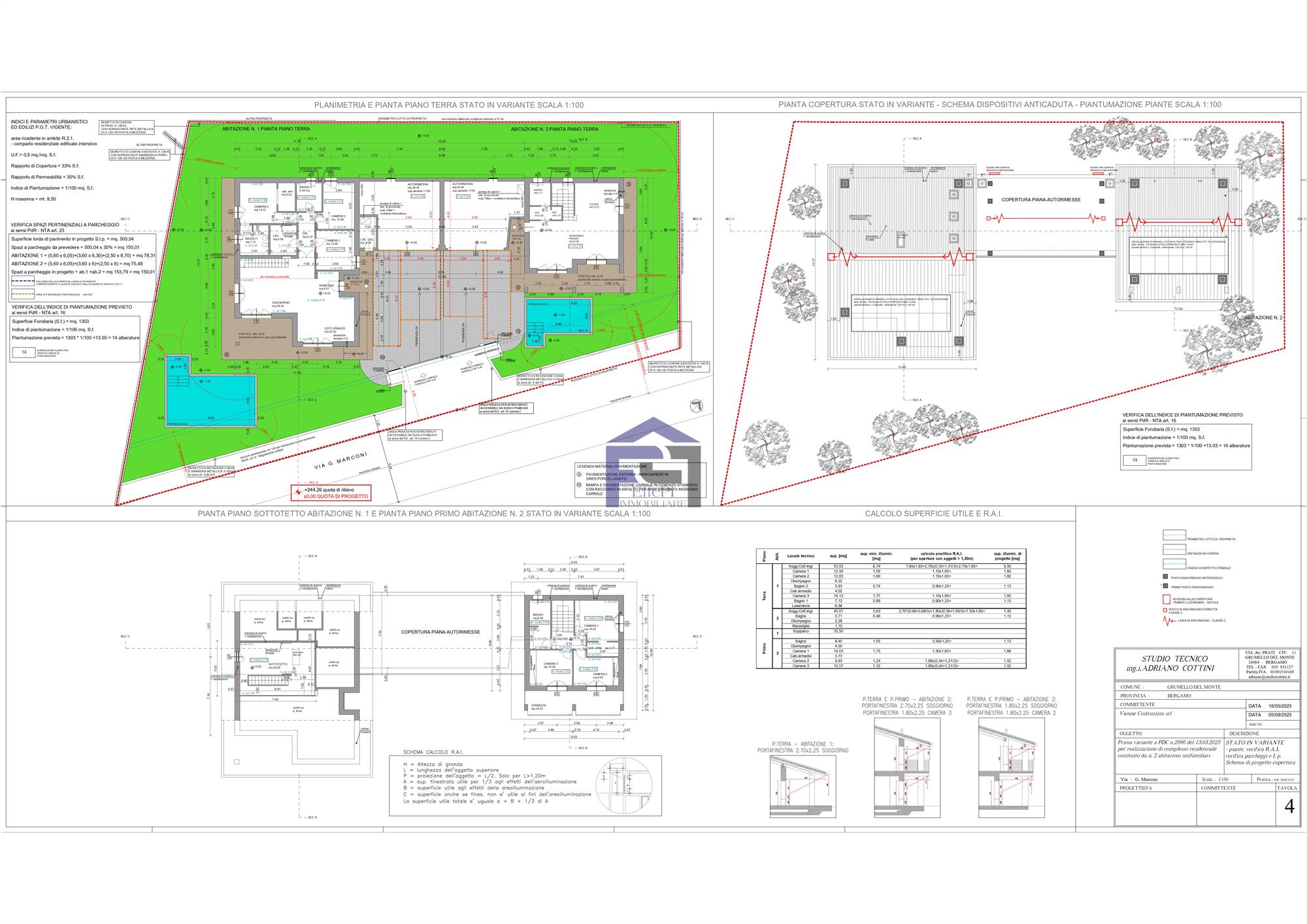
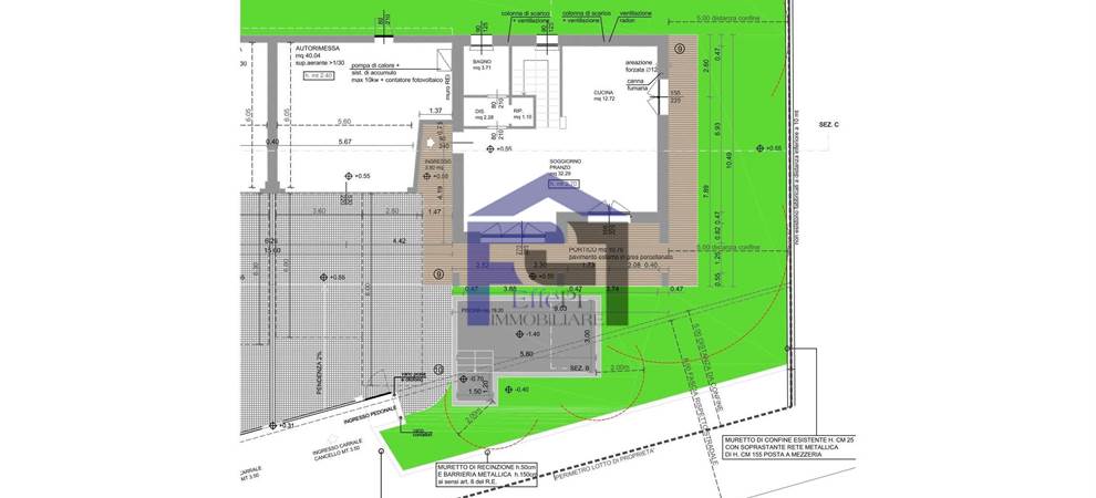
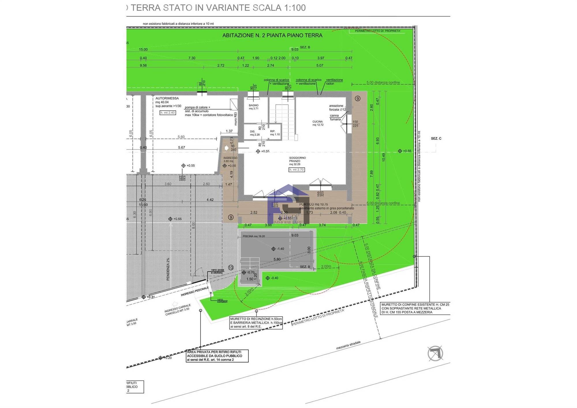
Disponiamo di villa bifamiliare completamente indipendente con ampio giardino privato su tre lati. Al piano terra box all'americana doppio in larghezza. Ingresso con ampio salone, cucina, bagno e portico vivibile. Scala interna per accesso al primo piano con travi a vista composto da n. 2 camere da letto matrimoniali, bagno padronale, ripostiglio e n. 1 camera singola. Le camere sono collegate da soleggiatissima terrazza. L'immobile attualmente è al rustico per ciò che concerne le finiture interne quindi personalizzabile per la scelta di pavimenti e rivestimenti nonchè l'allestimento dei bagni. La villa è dotata di impianto fotovoltaico con riscaldamento a pavimento e raffrescamento tramite split, entrambi in pompa di calore. Serramenti in PVC con oscuranti Griesser automatizzati. Detrazione fiscale del 50% con recupero in 10 anni del costo di costruzione del box per il valore di Euro 50.000. POSSIBILITA' VENDITA AL RUSTICO !!!
Caratteristiche principali
Codice:
V104
Città:
Grumello del Monte
Categoria:
Villa Bifamiliare
Locali:
4
Camere:
3
Bagni:
2
Mq:
160
Box:
1
Mq Box:
50
Posti auto:
2
Mq Giardino:
340
Terrazzi:
1
mq Terrazzo:
20
Piano:
Terra
Anno:
2024
Classe energetica:
A3
Stato Immobile:
Nuovo
Grado:
Signorile
Posizione:
Periferia
Panorama:
Vista Aperta
Orientamento:
Sud Est
Lati Liberi:
3
Giardino:
Privato
Arredi:
Non Arredato
Tipo Soggiorno:
Salone
Tipo Cucina:
A Vista
Riscaldamento:
Autonomo
Tipo Riscaldam.:
Pompa di Calore
Tipo Impianto:
Pavimento
Fonte Energetica:
Fotovoltaico
Acqua Calda:
Autonoma
Raffrescamento:
Split
Infissi:
PVC Doppio Vetro
Serramenti:
Ottimo
Persiana:
Persiana Metallo
Pavim. Giorno:
Personalizzato
Pavim. Notte:
Personalizzato
Pavim. Cucina:
Personalizzato
Pavim. Bagno:
Personalizzato
Accesso Disabili:
Nessuna Barriera
Accessori
Antifurto
Aria Condizionata
Armadio a Muro
Cancello Elettrico
Doppi Vetri
Fibra Ottica
Impianto Domotica
ImpiantoFotovoltaico
Impianto Satellitare
Ingresso indipendente
Lavanderia
Passaggio Automobilistico
Passaggio Pedonale
Piscina
Porta Blindata
Rete Dati
Ripostiglio
Video Citofono
Zanzariere
Cookie preference